1520:中古戸建 波平中古戸建二棟
| 価格 | 2,680万円 |
|---|---|
| 所在地 | 読谷村波平 |
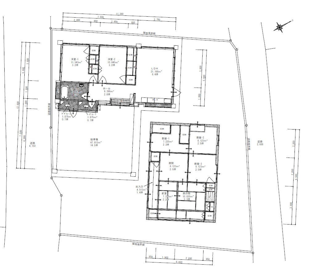
| 間取 | 2LDK |
| 土地面積 | 401.44m²(121.43坪) |
| 建物面積 | 70.55m²(21.34坪) |
| 私道面積 | |
| 築年月 | 1979 |
| 学区 |
| 建物構造 | 鉄筋コンクリートブロック造 |
|---|---|
| 階建 | 地上1階建 |
| 建ぺい率 | 50% |
| 容積率 | 100% |
| 地目 | 宅地 |
| 用途地域 | 第一種低層住居専用地域 |
| 土地権利 | 所有権 |
| 取引態様 | |
| 引渡時期 | 相談 |
| セットバック | 有 |
|---|---|
| 接道 | |
| 諸費用 | |
| 他法条例 | |
| 建築確認番号 | |
| 取引条件有効期限 | 令和07年12月11日 |
特色
公共本下水、公営水道、駐車場、プロパンガス






























































